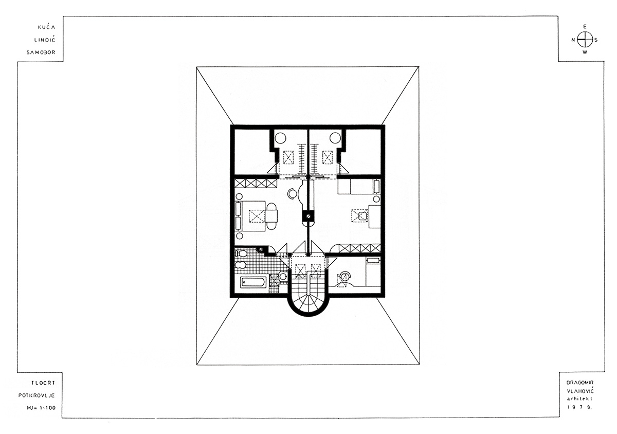
'Žuta kuća' - Lindić, Samobor

projekt
1978.
izvedba:
1978.-1985.