kuće
biografija
popis radova
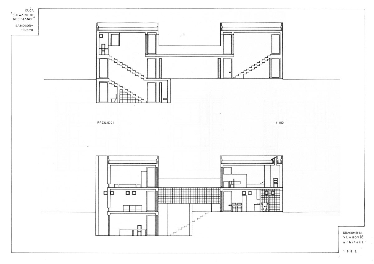
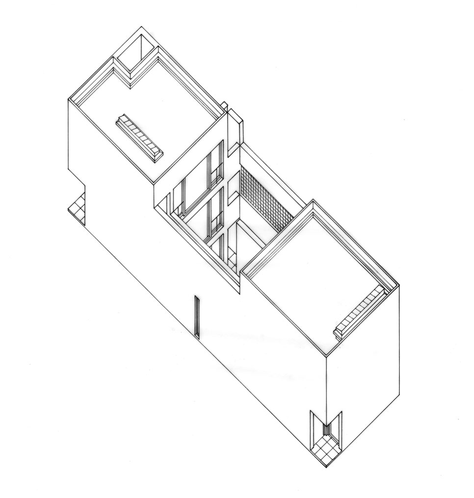
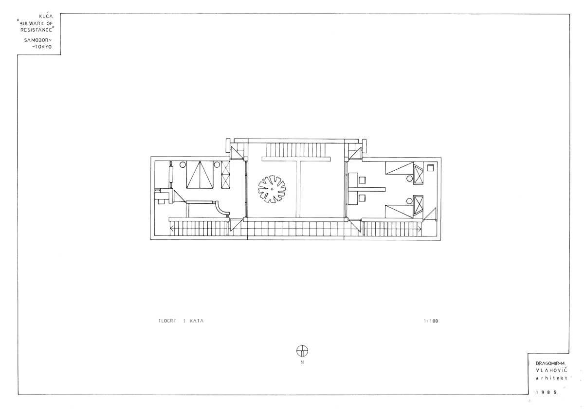
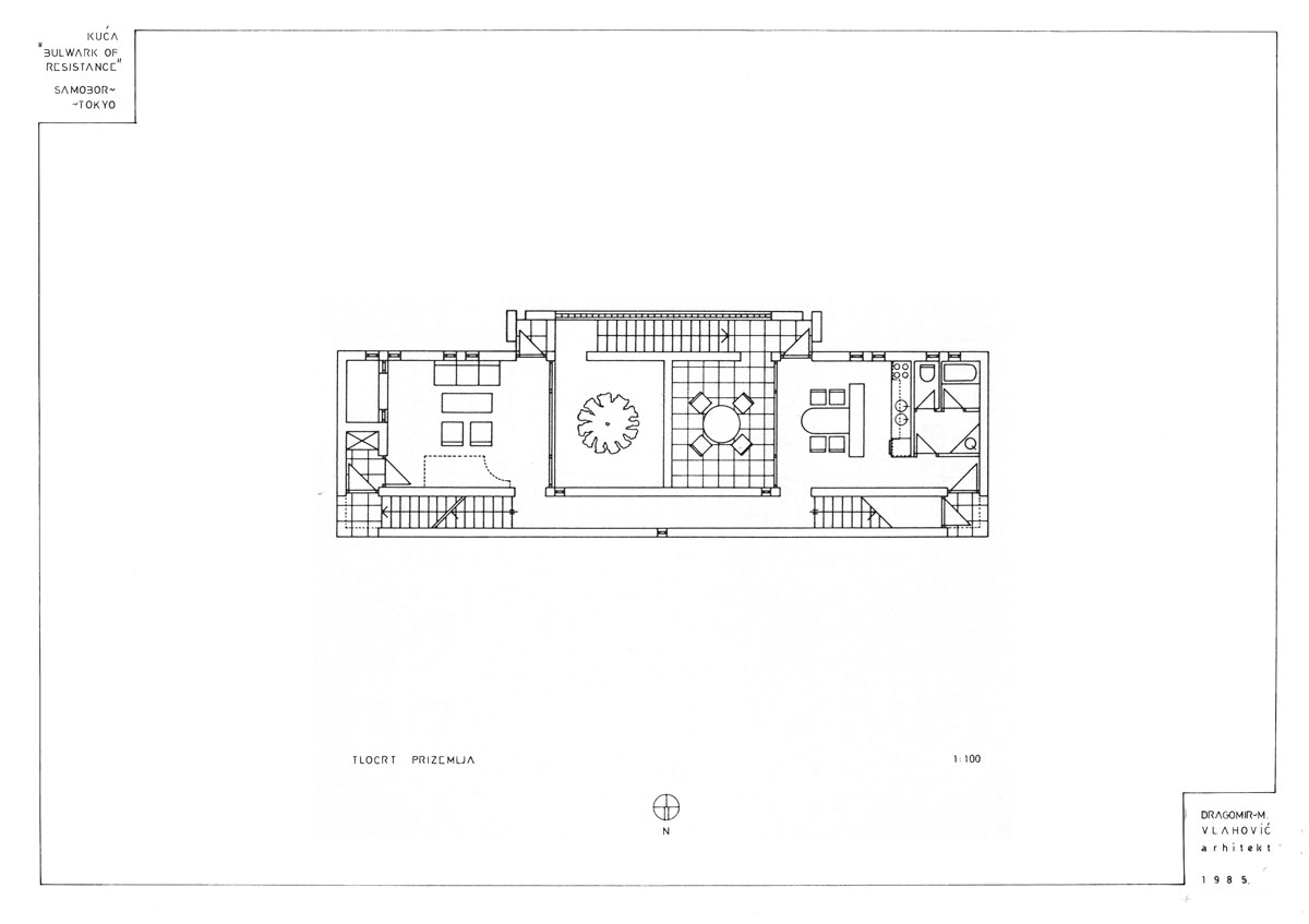
'Bulwark of Resistance' (zid koji pruža otpor)- kuća Vlahović, Samobor
projekt
1985.