kuće
biografija
popis radova
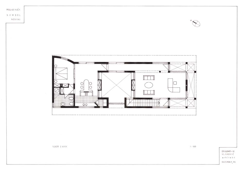
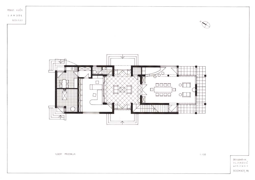
Poslovno stambena kuća - Crvena 'uspinjača' - Sambol, Samobor, Novaki
projekt
1993.